Trotz strömenden Regens sind ca. 25 Menschen @Mario Czaja und meinem Aufruf gefolgt und haben mit uns gemeinsam den Körnerteich und seine Umgebung von Müll und Unrat befreit.

Neben jeder Menge Verpackungsmüll und Leergut, waren unsere „Highlights“ diesmal eine verrostete Schubkarre und ein Zaunelement im See. Beides wurde von tatkräftigen Männern mit viel Körpereinsatz aus dem See geborgen.

Ca. 15 Säcke Müll konnten wir sammeln und an einem Ort, der wieder im Vorfeld mit der BSR abgesprochen war, ablegen. 

Ein besonderes Dankeschön möchte ich an dieser Stelle dem Angelverein ASV Kaulsdorf e.V. und der BSR aussprechen. Die Angler haben uns auch tatkräftig mit unterstützt, da es sich beim Körnerteich auch um ein Angelgewässer handelt. Die BSR hat sofort ihre Unterstützung zugesagt und noch am selben Tag unseren gesammelten Müll abgeholt.

Zu guter Letzt haben wir noch Mitglieder vom Naturschutzbund getroffen, die Frösche vom Froschzaun am Wald in Kaulsdorf eingesammelt haben, um sie am Körnerteich wieder auszusetzen.

Was für ein gelungener Tag für unsere Umwelt und unseren Kiez.

In diesem Sinne – genießt wie immer die Natur und nehmt Rücksicht auf sie!

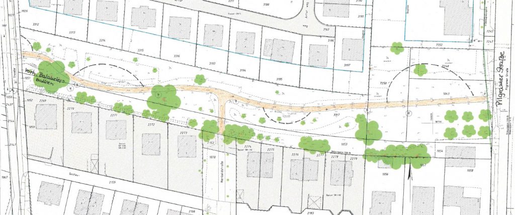
In diesem Jahr wird der Grünzug in den Theodorgärten zwischen Pilgramer Straße und Theodorstraße um mehrere Spielbereiche und Bewegungselemente ergänzt. Das Angebot soll Jung und Alt ansprechen und sich entlang des Weges erstrecken. Gemeinsam mit Mario Czaja und Nadja Zivkovic habe ich Sie nach Ihren Wünschen und Vorstellungen gefragt.
Ich habe mich sehr über Ihre rege Teilnahme und den Austausch gefreut.

Die Eckdaten des Bezirksamtes sehen folgende Planungen vor:

Was ist geplant?
Entlang des Grünzuges in den Theodorgärten zwischen Pilgramer Straße und Theodorstraße sollen drei Spiel- und Bewegungsbereiche entstehen.

Welche Zielgruppe sieht das Bezirksamt?
Das Bezirksamt setzt einen Schwerpunkt auf Kinder im Alter zwischen 3-10 Jahren. Aufgrund möglicher Lärmbelastungen soll auf Ballspielmöglichkeiten eher verzichtet werden.

Wie sieht der Zeitplan aus?
Die Arbeiten sollen noch vor dem Sommer beginnen und möglichst bis zum Ende des Jahres fertiggestellt werden.

Alle im Rahmen der gestrigen Veranstaltung gegebenen Hinweise werden nun durch das Bezirksamt geprüft. Wir haben hier einige aufgelistet:

Spiel- und Bewegungsbereiche

  • Absicherung des Grünzuges Richtung Pilgramer Straße durch Drängelgitter bzw. Zaun, damit Kinder nicht im Spiel auf die Straße laufen
  • Sandkasten mit Rutsche für kleine Kinder
  • Einfache Turngeräte wie ein Stufenreck
  • ein verbindendes Thema wäre wünschenswert

Grünflächenpflege

  • Pflanzung von Bäumen/ Sträuchern

Verkehrssicherheit

  • Anregung für die Prüfung eines Fußgängerüberweges
  • Geschwindigkeitsbegrenzung auf 30km/h auf der Pilgramer Straße

Falls sie gestern nicht teilnehmen konnten oder weitere Hinweise haben, schreiben Sie mir einfach, dann leite ich diese Hinweise weiter an das Bezirksamt.

Liebe Eltern,
viele Informationen – ähnlich wie Kanonenfeuer! Ich möchte das Thema „freiwillige Wiederholung“ kurz übersichtlich darstellen. Folgende Verfahrensabläufe zur Umsetzung des Anspruchs auf freiwillige Wiederholung der besuchten Jahrgangsstufe im Schuljahr 2021/22.

TerminWas ist zu tun?
Bis 13.04.2021Erziehungsberechtigte beantragen für Ihr Kind bei der Schulleitung schriftlich die freiwillige Wiederholung und begründen dies!
Achtung – das ist der zweite Tag nach den Osterferien!
Bis 26.04.2021Die Schule führt die Beratungsgespräche mit den Erziehungsberechtigten und informiert sie über die Vor- und Nachteile der Wiederholung.
Im Anschluss händigt sie das Formblatt „Schul 008“ aus.
Bis 30.04.2021Die Schulen senden die Listen mit allen Schülerinnen und Schülern, die freiwillig wiederholen an die zuständige Schulaufsicht UND das zuständige Schulamt/den Schulträger.
Bis 10.05.2021Der Schulträger/das Schulamt sendet den Erziehungsberechtigten, deren Kind die 6. Klasse besucht, ein Schreiben, in dem sie darauf hinweisen, dass das Anmeldeverfahren für die Jahrgangsstufe 7 abgebrochen wird.
Bis 18.06.2021Die Gymnasien informieren die Erziehungsberechtigten, deren Kinder nicht die Voraussetzung für die Versetzung in die nächste Jahrgangsstufe erfüllen, dass ihr Antrag auf freiwillige Wiederholung hinfällig ist.

Sollten Sie weitere Fragen haben, schreiben Sie mir gerne eine E-Mail.

Herzliche Grüße,
Ihre Katharina Günther-Wünsch

Liebe Mahlsdorferinnen und Kaulsdorferinnen,

heute ist die März- BVV-Sitzung und ich habe einige Anträge und Anfragen mit unserer Fraktion eingebracht, die auch für uns im Süden von Bedeutung sind.

Zunächst einmal habe ich einen dringlichen Antrag eingereicht „Raumluftfiltergeräte endlich in Betrieb nehmen & education Tarifverträge für die Schülerinnen nutzbar machen“!

Im Schulausschuss vergangene Woche haben wir erfahren, dass die education Tarife der Telekom noch immer nicht genutzt werden können, da es ein Kompetenzgerangel zwischen Senat und Bezirk gibt. Insbesondere in der aktuellen Situation sind solche Zustände unhaltbar und brauchen dringend eine Lösung. Aber noch viel schockierender finde ich die Tatsache, dass die schon bereits zu spät und zu knapp bestellten Raumluftfiltergeräte für die Schulen, momentan nur Schmuckstücke in den Klassenzimmern sind! Denn man hat vergessen die vor Ort Tätigen, über die Handhabung zu instruieren und einen Verantwortlichen für den Wechsel der essentiellen Filter zu benennen. Nicht dass das ein Hexenwerk wäre, nein es ist einfach nicht daran gedacht wurden. Und solange dieser formale Schritt an den Schulen nicht erfolgt ist – man weiß leider nur noch nicht durch wen und wann – dürfen die Raumluftfiltergeräte nicht in Betreib genommen werden! Das muss man sich mal vorstellen – dass ist im Sinne der Bildung und der Ökonomie ein Desaster und an Inkompetenz kaum zu übertreffen!

Deshalb mein Antrag, diese beiden Dinge umgehend zu lösen!

Ebenso brennt die Frage nach den Schülerinnenzahlen für das kommende Schuljahr 2021/22 uns allen unter den Nägeln. Meine große Anfrage 2491/VIII zielt genau darauf ab.
Ich möchte die Zahlen für die Schulanfänger und den Wechsel in Klasse 5 und 7 nach Schulen spezifisch aufgelistet wissen. Gerade im Siedlungsgebiet haben wir eine enorme Überbelegung der Schulen und es wird stetig mehr. Wenn wir jetzt noch die Möglichkeit der freiwilligen Wiederholung in Betracht ziehen, muss ganz genau hingeschaut werden, was das für die einzelne Schule im kommenden Schuljahr passiert. Brauchen wir Kapazitätserweiterungen, brauchen die Schulen die Möglichkeit zusätzliches Personal aufgrund großer Klassen einzustellen etc. Mit den Antworten auf meine große Anfrage werde ich die nächsten Anträge vorbereiten.
Als Abschluss zum Thema Schule im weiteren Sinne, haben wir einen Antrag „Anpassung der Ausschreibungen für Schulreinigung, faire Bezahlung & gute Qualität statt Rekommunalisierung“ gestellt.
Unser Ziel ist es, dass die Schulreinigungen nicht länger ausschließlich nach ökonomischen Gesichtspunkten ausgewählt und entschieden werden. Zielvereinbarungen und Bezahlung müssen endlich im Einklang stehen um somit einen qualifizierten Personaleinsatz mit fairer Bezahlung zu ermöglichen. Dieser Antrag ist auch ein entschiedenes Ja für die Unternehmen im FM-Bereich und gegen eine Rekommunalisierung der Schulreinigung.

Passend zu unserer Einwohnerversammlung am 23.03.2021 am Theodorpark werden wir auch noch die Drucksache 2220/VIII kommentieren. Die CDU-Fraktion setzt sich weiterhin vehement für eine Verlängerung des Fuß- und Radweges im Theodorpark ein. Deshalb freuen wir uns, dass diese Maßnahme bereits in die Investitionsplanung mit aufgenommen wurde. Und auch die Einwohnerfragen zeigen einmal mehr, dass Sie liebe Bürger*innen in Mahlsdorf und Kaulsdorf sehr rege Ihre Möglichkeit der Partizipation wahrnehmen. Themen wie Verkehrsinfrastruktur, Turnhallen und Sportangebote und das immer wiederkehrende Thema der Schulplatzsituation beschäftigen uns gleich zu Beginn unserer Sitzung.

Schauen Sie gerne rein und stellen Sie mir Fragen. Auch Anregungen, Kritik und Hinweise sind für mich immer hilfreich.
Gerne halte ich Sie über die Entwicklung der einzelnen Themen weiterhin auf dem Laufenden.

Bleiben Sie gesund
Herzliche Grüße
Ihre Katharina Günther-Wünsch

Über 45 Menschen sind unserem Aufruf gefolgt und haben mit uns gemeinsam das wunderschöne Landschaftsschutzgebiet von Müll befreit.

Weiterlesen

Seit fünf Jahren darf ich die Interessen der Mahlsdorfer und Kaulsdorfer in der Bezirksverordnetenversammlung vertreten. Gemeinsam mit Mario Czaja haben wir viele Probleme gelöst und noch immer müssen wir große Themen bewegen, deshalb wollen wir gemeinsam um Ihr Vertrauen werben. Mario Czaja würde Ihre Interessen im Bundestag vertreten und ich möchte Ihre neue Abgeordnete im Abgeordnetenhaus werden, um unsere lokalen Themen weiter voranzubringen. Gemeinsam für unsere beiden Dörfer, Kaulsdorf und Mahlsdorf.

Damit Sie mich, meine Motivation und meine Ziele besser kennenlernen, stelle ich mich Ihnen in einem Video kurz vor. Ich freue mich darauf Sie kennenzulernen.

Bleiben Sie bitte gesund, Ihre Katharina Günther-Wünsch.